Wielka Wieś 175 m2 ul. Wesoła

Dom (Wolnostojący) na sprzedaż
1 970 000,00 PLN , Pow. 174,08 m2
Drukuj ofertę
Drukuj ofertę
Typ nieruchomości:
Dom
Powierzchnia:
174,08 m2
Typ transakcji:
sprzedaż
Liczba pokoi:
5
Lokalizacja:
Wielka Wieś , Wesoła
Rok budowy:
2026
Liczba pięter:
1
Numer oferty:
EC031175683512
Powierzchnia działki:
800 m2
Cena za m2:
11 316,64 PLN
Dom na sprzedaż - Wielka Wieś, pod Krakowem

Cena: 1 970 000 zł

Powierzchnia domu: 174,08 m²

Powierzchnia działki: 800 m²

Liczba pokoi: 5

Typ nieruchomości: dom jednorodzinny, wolnostojący



Lokalizacja:

Na sprzedaż wyjątkowy dom położony w malowniczej miejscowości Wielka Wieś, zaledwie 15 minut jazdy od centrum Krakowa. Spokojna, zielona okolica łączy w sobie uroki podmiejskiego życia z szybkim dostępem do miasta. Dom realizowany jest na pięknej widokowej działce, otoczonej starodrzewem.


Dom będzie wybudowany w stanie deweloperskim. Idealny dla rodziny szukającej przestrzeni, spokoju i bliskości natury.

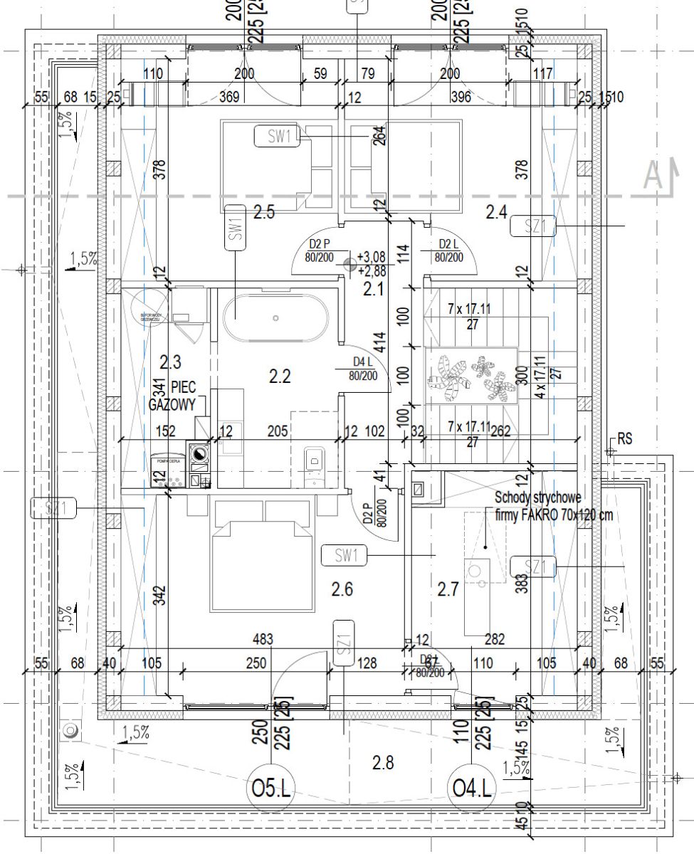
W skład nieruchomości wchodzą:

Parter:

- Przestronny salon z jadalnią i wyjściem na taras
- Kuchnia
- Pokój/biuro
- Wiatrołap
- Korytarz
- Garaż o szerokości 3,5m
- Taras

Piętro:

- Sypialnia z garderobą
- Pokój
- Pokój
- Łazienka
- Pomieszczenie gospodarcze




Dojazd i infrastruktura:
Szybki dojazd do Krakowa (droga krajowa 94, autostrada A4 w niedalekiej odległości)

w pobliżu sklepy, szkoła, przedszkole, przystanek MPK, spokojna, bezpieczna okolica z nową zabudową jednorodzinną.



Dodatkowe informacje:

Dom oddany będzie w stanie deweloperskim:
- tynki gipsowe
- wylewka cementowa
- stolarka okienna aluminiowa (okna w systemie HS)
- instalacje elektryczne wraz z osprzętem
- instalacje wod-kan
- instalacja c.o. - ogrzewanie podłogowe w całej części domu
- wykończenie tarasów płytą gresową tarasową
- balustrady szklane
- brama garażowa segmentowa Hormann
- drzwi wejściowe o wysokości 270 cm
- rolety zewnętrzne
- wykończenie elewacji w tynku z okładziną z naturalnego kamienia
- podjazdy i chodniki z kostki brukowej
- zagospodarowanie terenu zewnętrznego/ogrodzenie frontowe dekoracyjne

Media: prąd, woda, kanalizacja

Ogrzewanie: pompa ciepła + rekuperacja

Realizacja domu planowana jest na II kw. 2026 roku.


Zapraszamy do kontaktu osoby zainteresowane.
nr tel: 784666602
office@omegaestates.pl

Tomasz Przewoźnik
Nieprawidłowy adres E-mail